
電碳捏合機
山東龍興集團是一家系列捏合機(混捏機)的大型集團化生產企業廠商,幾十年來我公司致力于系列不銹鋼及碳鋼等材質的螺桿擠出型捏合機、液壓翻缸捏合機、高溫捏合機、真空型捏合機、下出料捏合機、碳素混捏鍋及混捏機的開發設計與制造;根據使用工況不同有電加熱、蒸汽加熱、導熱油加熱、零距離加熱、半圓管復合加熱等不同加熱形式的系列碳鋼/不銹鋼碳素捏合機(混捏鍋)供您選型,龍興集團銷售部長原君禮現真誠為您推薦該款碳素捏合機(混捏鍋)。歡迎您致電和微信(手機同號)咨詢!
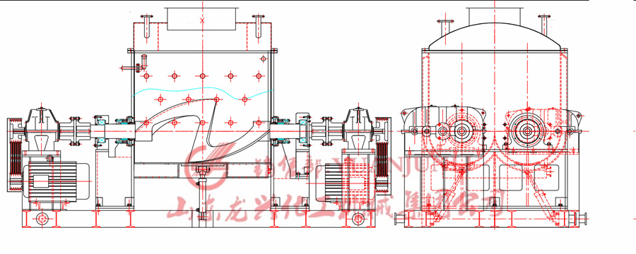
碳素捏合機(混捏鍋)用于碳素、電碳、鋁、石墨廠等工礦企業生產的各種規格的石墨化電極、陽極糊、高純度石墨、電碳刷及高爐塊等產品,通過一對不同轉速攪拌漿所產生強烈的剪切、擠壓及攪拌,以石油焦、無煙煤、冶金焦為主要原料,煤瀝青為粘結劑所構成的物料充分混捏,達到物料均質及細化之目的。
(1)碳素捏合機(混捏鍋)的內攪拌腔內加附16Mn板,可拆卸更換,方便客戶使用;
(2)碳素捏合機(混捏鍋)的攪拌槳包焊16Mn板,極大的提高了設備的使用壽命;
(3)內夾套及兩端板設導流裝置,升溫快,傳熱效率高。
(4)出料采用雙開門快速出料裝置,液壓起閉,快速、可靠、靈活。
(5)攪拌槳為正反轉,可單傳動,也可雙傳動,簡單方便;
(5)配有溫控數顯裝置(物料及傳熱介質);
(6)碳素捏合機(混捏鍋)的上蓋為液壓啟閉,軸兩端設有調心滾子軸承,十分便捷;
(7)碳素捏合機(混捏鍋)整體選襯套式組合填料密封形式。

碳素捏合機(混捏鍋)通過一對不同轉速攪拌漿所產生強烈的剪切、擠壓及攪拌,以石油焦、無煙煤、冶金焦為主要原料,煤瀝青為粘結劑所構成的物料充分混捏,達到物料均質及細化之目的。其拌缸夾套內可設計成電加熱、油加熱或零距離加熱等形式。
碳素捏合機(混捏鍋)主要結構是由混捏部分、機座部分、液壓系統、傳動系統和電控系統等五大部分組成。混捏部分是由缸體、漿軸、墻板、缸蓋等組成。液壓系統由一臺液壓站來操縱大油缸,來完成啟閉大蓋、閉合翻板等功能電控系統有手動、自動電控系統,由用戶任意選擇和要求,操作方便、可靠。
友情提示 :
選擇一種好設備的關鍵除 了質量、售后、和信譽之外,還必須要滿足自身對設備的要求,山東龍興化工集團擁有專業的技術工程師不斷進行技術改革與市場相結合,本廠生產的產品規格品種齊全??蓙韴D定制也可根據客戶需求代為設計制造,歡迎您的選購!
我公
司憑借在業內三十余年的技術積累和成長經歷,已經發展為集科研、開發、制造為一體的科技型集團公司,主要業務涉及
液體研磨機、攪拌分散機,膏體混拌捏合機、雙行星動力攪拌混合機,干粉攪拌混合機,導熱油、蒸汽
鍋爐、反應釜和換熱器及一二三類壓力容器的設計與生產。
同時我們承接行業用戶成套設
備及生產線的設計制造業務,龍興人愿與天下有識之士攜手共創新的輝煌。
